In het hart van Kampen prijkt sinds 2022 een nieuwe culinaire parel: La Base Pizza, het nieuwste project van de jonge en enthousiaste eigenaren die al drie succesvolle vestigingen van La Base runnen. De keuze voor Kampen als vierde locatie was evident, en de beschikbare horecaruimte, strategisch gelegen aan een centraal plein aan de voet van een karakteristieke kerk en omringd door diverse andere horecazaken, bood een uitgelezen kans.
Bij de overname van het pand, dat casco werd opgeleverd, gingen wij, in nauwe samenwerking met onze opdrachtgevers, aan de slag om deze langgerekte en smalle ruimte te transformeren tot een efficiënte en sfeervolle omgeving. Een ware puzzel waarin alle essentiële elementen niet alleen in elkaar zouden passen, maar ook volledig tot hun recht zouden komen.
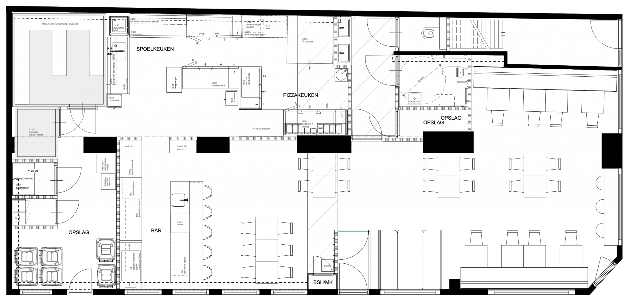
Ons ontwerp omvat een doordachte layout waarin ruimte is gecreëerd voor opslag, horecakoelingen en -vriezers, een professionele keuken met een authentieke Italiaanse steenoven voor de pizza’s, comfortabele toiletten met een ruime voorruimte, een entree met tochtportaal, en de eigentijdse restaurantruimte met een gezellige bar, doorkijk naar de keuken en voldoende zitplaatsen voor de gasten.
We hebben speciale aandacht besteed aan de esthetische details, zoals bijvoorbeeld de unieke wandfolies en bijpassende glasfolies. De ontwerpen van de bar, backbar en maatwerkbanken hebben we zorgvuldig uitgewerkt om naadloos aan te sluiten bij de algehele sfeer. In het kader van comfortabel dineren hebben we een akoestisch sluitplafond toegepast, in combinatie met akoestische wandpanelen, om een aangename akoestiek te garanderen in dit pand met bijna volledig glazen gevels aan twee zijden.
Om het geheel af te maken, kozen we vloer- en wandafwerkingen die perfect harmoniëren met het overkoepelende ontwerpconcept. We integreerden een doordacht lichtplan om de gewenste sfeer te creëren, met als eyecatcher een drietal enorme hanglampen van ‘petite friture’ boven de tafels langs de lange wand. La Base Pizza belooft niet alleen een culinaire ervaring, maar ook een ambiance die de gasten omarmt en uitnodigt tot genieten.
Dit project belichaamt onze toewijding aan het creëren van functionele en esthetisch verfijnde ruimtes, waarbij het samenspel tussen design en efficiëntie centraal staat. We zijn trots dat we hebben kunnen bijdragen aan de realisatie van deze nieuwe hotspot in Kampen.
Oplevering 3e kwartaal 2022
Kampen 159m2
Van casco bouwtekeningen naar realisatie van het interieurontwerp
In samenwerking met Marieke Hoogstad.













