In Schoonhoven kreeg ik de kans om een prachtige jaren ’30 woning te transformeren tot een eigentijdse, functionele leefruimte, zonder afbreuk te doen aan de authentieke details. Dit project draaide om het vergroten van de woonruimte en het verbeteren van de indeling, terwijl de voormalige zilversmidswerkplaats behouden bleef als badkamer, toilet, wasruimte, werkplek en opslag.
Slimme indeling & extra woonruimte
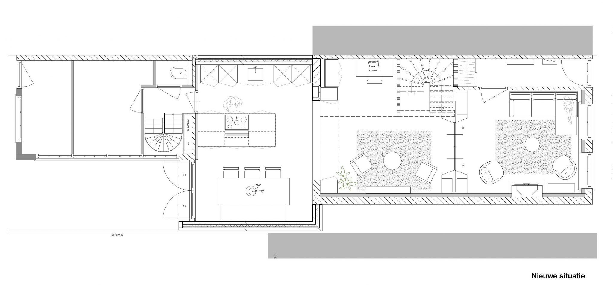
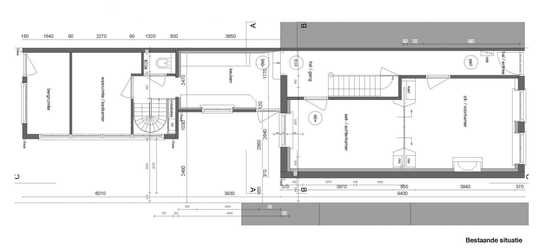
In de oorspronkelijke situatie liep een lange gang van 9,5 meter van de voordeur naar de keuken, die het voorhuis verbond met de werkplaats. Om de woning ruimer en logischer in te delen, heb ik het tussenstuk met de bestaande keuken verwijderd en over de volledige breedte van de achtergevel uitgebouwd. Hierdoor ontstond maar liefst 15m² extra woonoppervlakte, zonder de karakteristieke uitstraling van de woning te verliezen. Daarnaast is de trap verplaatst van het midden van het huis naar de zijgang, waardoor niet alleen de routing werd verbeterd, maar ook waardevolle leefruimte werd gewonnen.
Een nieuw hart voor de woning
Door deze aanpassingen kon de voormalige achterkamer van het voorhuis volledig transformeren naar een royale leefkeuken. Hier realiseerden we een op maat gemaakte keuken met keukeneiland, ontworpen en vervaardigd door Cavallo Keukens. Het keukenoppervlak verdubbelde, en er ontstond volop ruimte voor een eettafel, waardoor deze plek het bruisende middelpunt van de woning werd.
Balans tussen historie en modern wooncomfort
Het nieuwe centrale deel van de woning combineert functionaliteit en sfeer. De ruimte doet nu dienst als een veelzijdige werkplek, trapopgang en leeshoek, waar licht, comfort en karakter samenkomen. Het ontwerp respecteert de oorspronkelijke architectuur, maar biedt tegelijkertijd alle moderne gemakken die passen bij hedendaags wonen.
Dit project werd in mei 2022 met trots opgeleverd en laat zien hoe een slimme herindeling en uitbouw een historische woning nieuw leven kunnen inblazen.
Oplevering 2022
Schoonhoven, 50m2
Ontwerp uitbouw, renovatie & interieur
In samenwerking met Marieke Hoogstad.



















